 
                                     
                                     
                                     
                                     
                                     
                                     
                                     
                                    FŐ TULAJDONSÁGOK
                            Anyag
                            Gömbgrafitos öntöttvas
                        
                            Zajcsillapító
                            PUR
                        
                            Szabvány
                            MSZ EN 124-2
                        
                            Lopásvédelem
                            Csuklópánt
                        
                            Működési mód
                            Teleszkópos, önszintező
                        
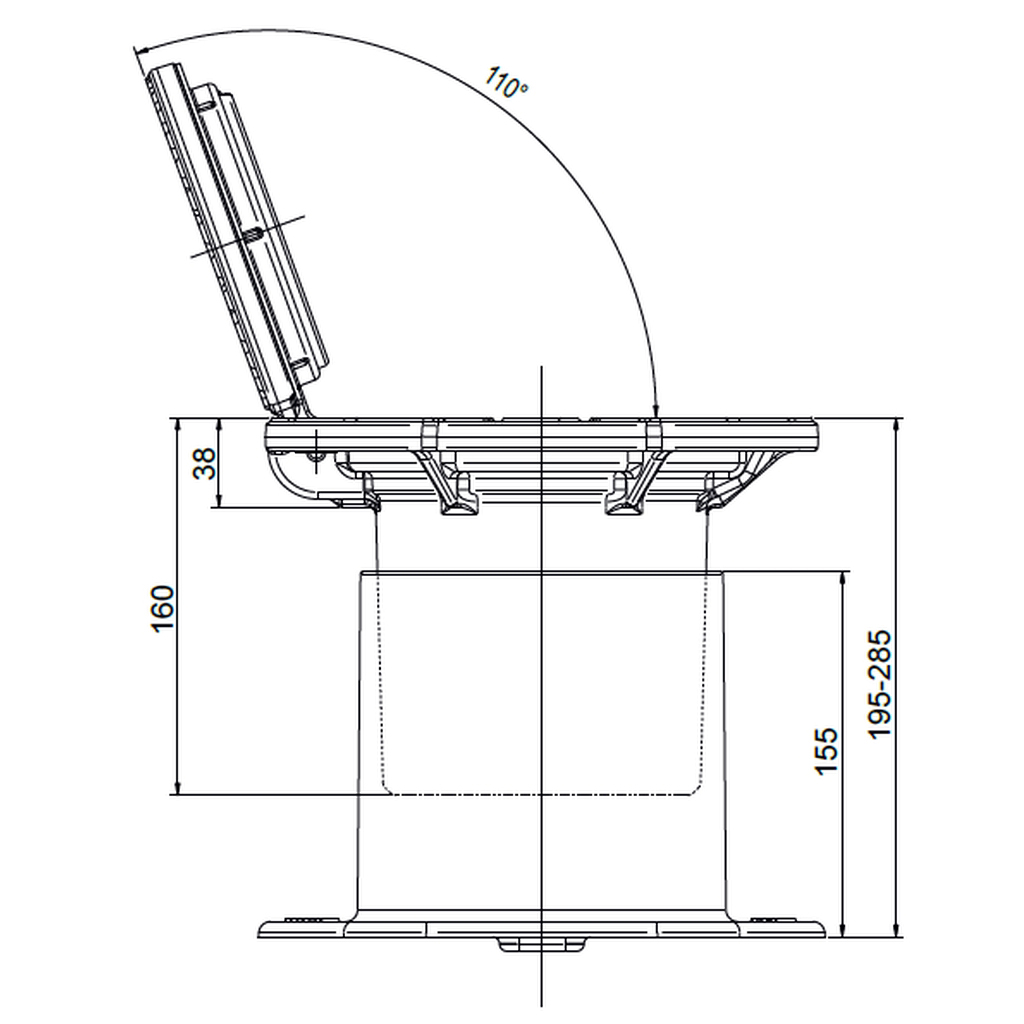
| Cikkszám | Terhelési osztály | Beépítési magasság (mm) | Súly (kg) | Csomagolási egység (db/raklap) | 
| 3--CS-KVS02-P | D400 | 195–285 | 11,5 | 80 | 
A weboldalunkon cookie-kat használunk, hogy a legjobb felhasználói élményt nyújthassuk. Részletes leírás