FŐ TULAJDONSÁGOK
Felhasználási terület
Semleges gázok és folyékony közeg szűrésére
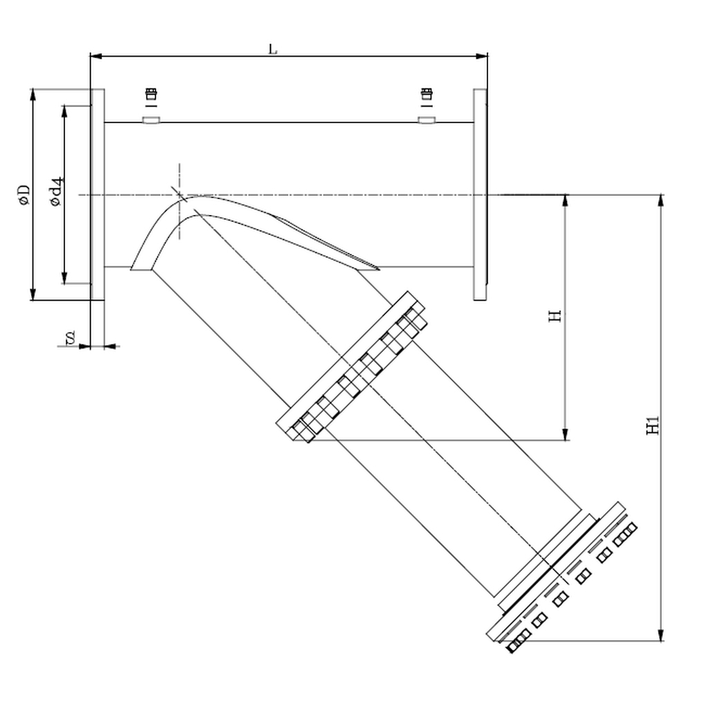
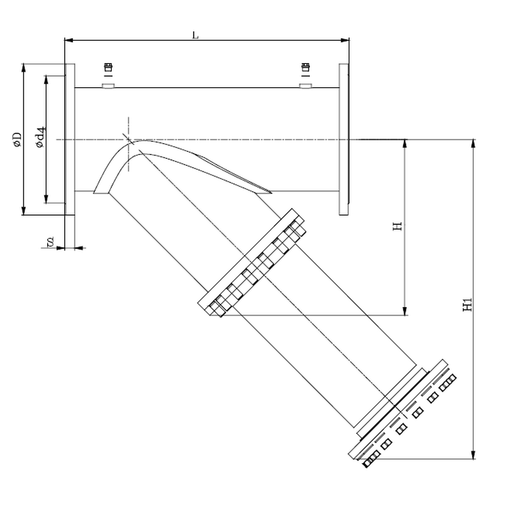
Mérettartomány
DN 250–700
Test és fedél anyaga
Szűrő anyaga
Rozsdamentes acél 1.4301
Tömítés
Maximum üzemi nyomás
PN 6/10/16/25
Jellemzők
| DN | Méretek (mm) | Normál szűrő Kv (m³/h) | Normál szűrő ζ (-) | Súly (kg) | ||
| L | H | H1 | ||||
| 250 | 730 | 445 | 785 | 975 | 6,56 | |
| 300 | 850 | 545 | 945 | 1407 | 6,53 | |
| 350 | 980 | 590 | 1060 | 1790 | 7,48 | 205 |
| 400 | 1100 | 670 | 1195 | 2341 | 7,46 | 280 |
| 450 | 1200 | 740 | 1320 | 2961 | 7,47 | 345 |
| 500 | 1250 | 800 | 1425 | 3660 | 7,45 | 400 |
| 600 | 1450 | 935 | 1665 | 5274 | 7,44 | 545 |
| 700 | 1650 | 1080 | 1920 | 7184 | 7,43 | 780 |
| SZŰRŐBETÉT | ||||||
| Normál szűrő | ||||||
| DN | 250–700 | |||||
| Szitaköz (mm) | 2,00 | |||||
| Szitasűrűség (db/cm²) | 15,5 | |||||